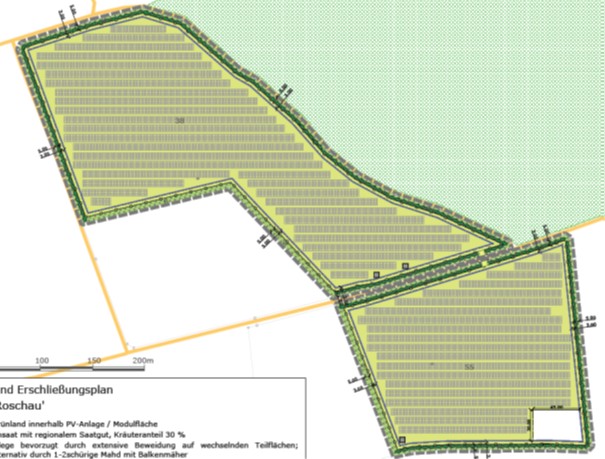
Vorhabenbezogener Bebauungsplan "Solarpark Roschau"
Für das im Flächennutzungsplan festgelegte Sondergebiet „Photovoltaik und Speicher“ wurde ein vorhabenbezogener Bebauungsplan erstellt.


In wenigen Schritten können Sie hier Ihren Termin bei uns im Rathaus buchen. Gerne mehrere Anliegen zusammenfügen oder auch direkt für den/die Partner/-in mitbuchen.
Bitte beachten Sie, dass zu dem vereinbarten Termin die notwendig Unterlagen mitzubringenden sind und denken Sie daran, dass Sie den Termin wieder stornieren, wenn Sie ihn nicht wahrnehmen können.
Vielen Dank!